The Cataldo Farmhouse Shell Kit Plans 48'x101'x10'
Starting at $130,000
$5000.00
The Cataldo Farmhouse
Structural Shell Kit
Modern farmhouse design featuring a wide open layout, large garage, and simple roof lines designed for efficient construction.
Structural Shell Kit – Retail Price
$130,000
✔ Shipping included regionally
✔ Designed as a DIY structural shell kit
What the Cataldo Shell Kit Includes
1. Factory Framed Exterior Wall Panels
• 2x6 exterior wall framing
• ZIP System wall sheathing
• structural headers
• window and door openings framed
• labeled wall panels for assembly
2. Engineered Roof Truss Package
• full roof truss system
• designed to match the roof plan
• engineered to local code requirements
• roof sheathing included
3. Metal Board & Batten Siding Package
26 Gauge Black Metal
Includes:
• board panels
• battens
• corner trim
• base trim
• J-channel
• beam wraps
• fasteners
4. Standing Seam Metal Roof Package
26 Gauge Black Standing Seam
Includes:
• 15" standing seam panels
• ridge cap
• eave trim
• valleys
• snow guards
• vented soffit
• underlayment
• fasteners and sealants
The Cataldo Farmhouse
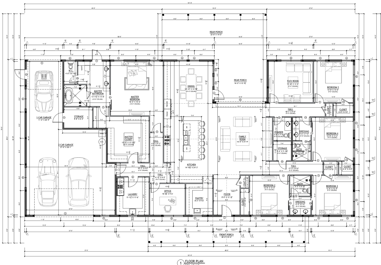
Modern Farmhouse Design with Integrated Garage
The Cataldo Farmhouse is a thoughtfully designed modern farmhouse featuring a wide-open living layout, attached garage, and clean exterior lines ideal for metal siding and standing seam roofing systems.
This home was designed with efficient structural framing and panelized construction in mind, allowing builders and homeowners to simplify the building process while maintaining a high-quality finished home.
The Cataldo plan includes:
• 3,689 sq ft of living space
• 955 sq ft attached garage
• open concept kitchen and living area
• large rear covered porch
• dedicated office and pantry
• primary suite with large walk-in closet
• multiple guest bedrooms
The design is ideal for rural properties, barndominium-style construction, or modern farmhouse builds.
Plan Purchase – $5,000
Purchasing this plan provides immediate access to the downloadable design package and secures your place in our engineering and structural production schedule.
Your purchase includes:
• complete architectural plan download
• eligibility for structural engineering services
• coordination for structural framing packages
• access to shell kit and material package pricing
• placement in our production scheduling system
This purchase allows our team to begin preparing the project for engineering and fabrication.
Engineering & Production Scheduling
Once the plan is purchased, our team will begin preparing the project for engineering and structural package coordination.
A formal project invoice will be issued 5–10 days prior to the scheduled production start date.
This invoice will include:
• engineered framing package
• metal siding package
• standing seam roofing package
• delivery coordination
All structural packages are project specific and engineered for the build location.
Delivery & Logistics
All structural shell kit orders include delivery coordination.
Orders shipped from our facilities are equipped with GPS shipment tracking, allowing clients and contractors to monitor deliveries during transit.
Regional delivery options are available for qualifying projects.
Important Notes
• Plan purchase secures engineering and production scheduling.
• Structural package pricing varies by project location and design requirements.
• Construction labor, foundation work, windows, and doors are not included in the base structural package pricing.
• All engineering and structural components are designed to meet local building code requirements.


