Ravenwood Flats BP-701 with Garage Options!
An Expanded Modern Barndominium with Added Living Space, Bump-Out Design, and Enhanced Functionality
$999.00
The Ravenwood Flats – Expanded (BP-701) takes one of Buckeye’s most popular barndominium layouts and elevates it with additional square footage and strategic bump-outs that enhance both functionality and livability.
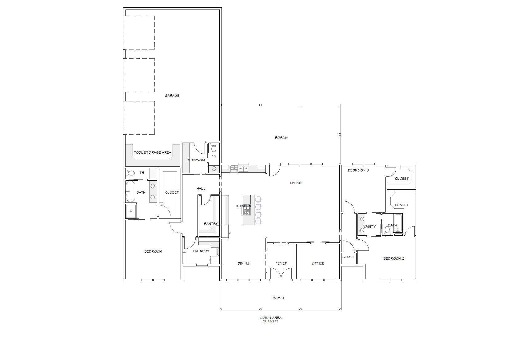
With 2,511 square feet of living space and a 900 square foot attached garage, this upgraded design offers a more spacious feel while maintaining the clean, rectangular efficiency that makes barndominiums cost-effective to build.
The expanded layout creates a more open and comfortable flow through the main living areas, featuring a large open-concept kitchen, dining, and living room that connects seamlessly to both the front and rear covered porches. This makes the home perfect for entertaining, relaxing, and enjoying outdoor views.
The thoughtfully designed 3-bedroom layout includes a split-bedroom configuration for privacy. The additional space from the bump-outs allows for larger rooms, improved circulation, and a more refined overall layout.
One of the standout features of this plan is the enhanced bedroom wing, offering better spacing between rooms along with improved bathroom and closet configurations—ideal for families or guests.
The garage and mudroom entry remain highly functional, with dedicated storage and transition space that keeps the main living areas clean and organized.
This plan is ideal for homeowners who love the original Ravenwood Flats but want more space, better room proportions, and an upgraded feel without overcomplicating the structure.
Quick Specs
Living Area: 2,511 SQFT
Garage: 900 SQFT
Bedrooms: 3
Bathrooms: 2.5
Stories: 1
Structure: Barndominium / Post Frame / Stud Frame Compatible
Layout: Open Concept + Split Bedroom Design
Porches: Front & Rear Covered Porches
Design Upgrade: Expanded footprint with bump-outs
Key Features
Expanded version of a proven best-selling layout
Bump-outs increase usable space and improve flow
Large open-concept kitchen, dining, and living area
Private split-bedroom layout
Dedicated office/flex space near entry
Oversized garage with tool/storage area
Functional mudroom entry from garage
Improved bedroom wing layout with better spacing
Strong indoor-outdoor living connection
What Makes This Version Better
Larger overall footprint without losing efficiency
Better room proportions throughout
Enhanced bedroom and bathroom layouts
More comfortable living and circulation space
Maintains rectangular structure for cost control
Who This Plan Is Perfect For
Buyers who liked BP-700 but wanted more space
Families needing improved room layouts
Barndominium builds with a higher-end feel
Homeowners building on wide lots or acreage
Clients wanting a balance of efficiency + comfort


